Aspen
|
|
| 3 2 .5 2 2,213 |
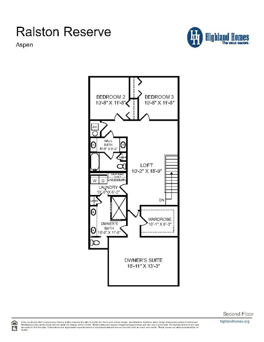
| Loft |
|
20 Sunset Haven Loop, St. Cloud, FL 34771 Homesite #: RRS-10-067 Status: Under Construction Move In: March 2026 * subject to change |
Status: Under Construction Move In: March 2026 * subject to change
Luxurious, open layout townhome for sale in St. Cloud, FL, with 3 bedrooms, a loft, and an attached 2-car garage.
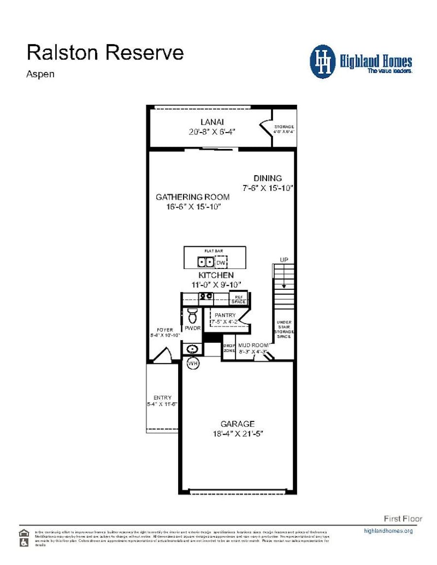
Downstairs, you will find a spacious, open living area with beautiful finishes and thoughtful conveniences, along with a large covered lanai with a triple-sliding glass door and a storage closet.
Upstairs, enjoy a flex-use loft and three bedrooms, including your spacious owner's suite with a private entry hallway, a large walk-in wardrobe, and a private en-suite bath with dual vanities, a glass-enclosed tiled shower, a linen closet, and a closeted toilet.
This home includes features and finishes hand-selected by our professional designers for your lifestyle and move-in convenience:
- A beautifully designed kitchen with:
- A counter-height island
- Quartz countertops
- 36-inch rustic brown birch wood soft-close cabinets with crown moulding and decorative knobs/pulls
- A decorative tiled backsplash
- Stainless steel undermount sink with a pull-down faucet
- Walk-in pantry
- Samsung stainless steel appliances:
- 5-burner smooth-top electric range with wi-fi smart controls
- Fingerprint-resistant microwave with a ventilation system
- ENERGY STAR® quiet-operation dishwasher
- ENERGY STAR® side-by-side refrigerator
- Low-maintenance luxury vinyl plank flooring throughout the first floor, laundry room, and all bathrooms
- Mohawk stain-resistant carpet in the bedrooms
- Energy-efficient LED lighting in the kitchen, gathering room, and loft
- Custom-fit 2-in. faux wood window blinds
- Full-size Samsung washer and dryer
- … and much more!
Save on utilities with energy-efficient R-30 insulation, foam-injected block insulation, double-pane Low-E windows, and a programmable thermostat.
To learn more about owning this beautiful, professionally designed new construction townhome in St. Cloud, FL, call or email us today!

Equal Housing