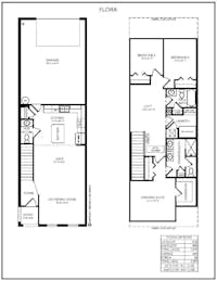
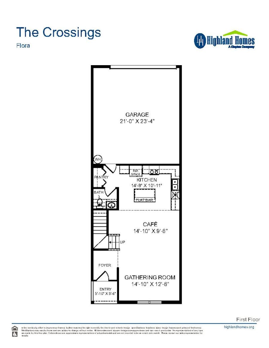
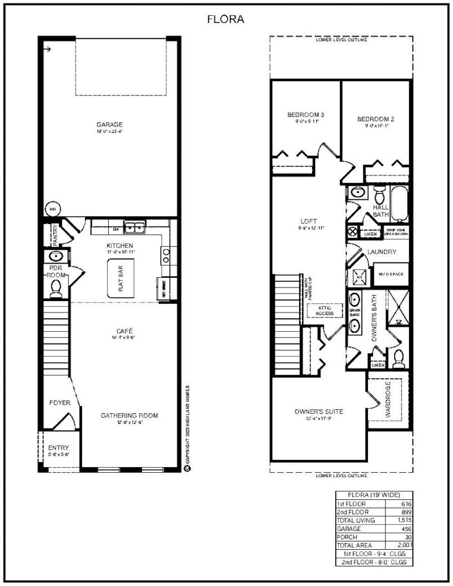
Flora
|
|
| 3 2 .5 2 1,515 |
| Loft |
|
5776 Freshwater Canyon Drive, St Cloud, FL 34771 Homesite #: CRT-12-096 Status: Move-In Ready |
Status: Move-In Ready
Beautiful, open layout, move-in ready townhome for sale in St Cloud, FL, with 3 bedrooms, a loft, and an attached alley-entry 2-car garage.
Downstairs, you will find a spacious, open living area with beautiful finishes and thoughtful conveniences. Upstairs, relax in your private owner's suite with a large walk-in wardrobe and private en-suite bathroom including dual vanities, a decorative tiled shower, a linen closet, and a private toilet. A flex-use loft and two secondary bedrooms share a convenient hall bath.
This home includes features and finishes hand-selected by our professional designers for your lifestyle and move-in convenience:
- A beautifully designed kitchen with:
- A counter-height island
- Quartz countertops
- 36-inch white shaker-style soft-close cabinets with crown moulding and decorative knobs/pulls
- A decorative tiled backsplash
- Stainless steel undermount sink with a pull-down faucet
- Pantry
- Samsung stainless steel appliances:
- 5-burner smooth-top electric range with wi-fi smart controls
- Fingerprint-resistant microwave with a ventilation system
- ENERGY STAR® quiet-operation dishwasher
- ENERGY STAR® side-by-side refrigerator
- A dedicated laundry room with a Samsung full-sized washer and dryer
- Low-maintenance luxury vinyl plank flooring throughout the first floor, laundry room, and all bathrooms
- Mohawk stain-resistant carpet in the bedrooms
- Energy-efficient LED lighting in the kitchen and gathering room
- Custom-fit 2-in. faux wood window blinds
- … and much more!
Save on utilities with energy-efficient R-30 insulation, foam-injected block insulation, double-pane Low-E windows, and a programmable thermostat.
For your VIP tour and more information about owning this beautiful, professionally designed new construction townhome in St Cloud, FL, call or email us today!
Photos showcase a home with similar finishes, not the actual home for sale. Furnishing and décor items not included.

Equal Housing